
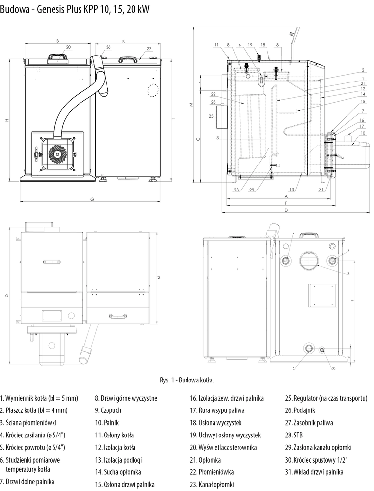
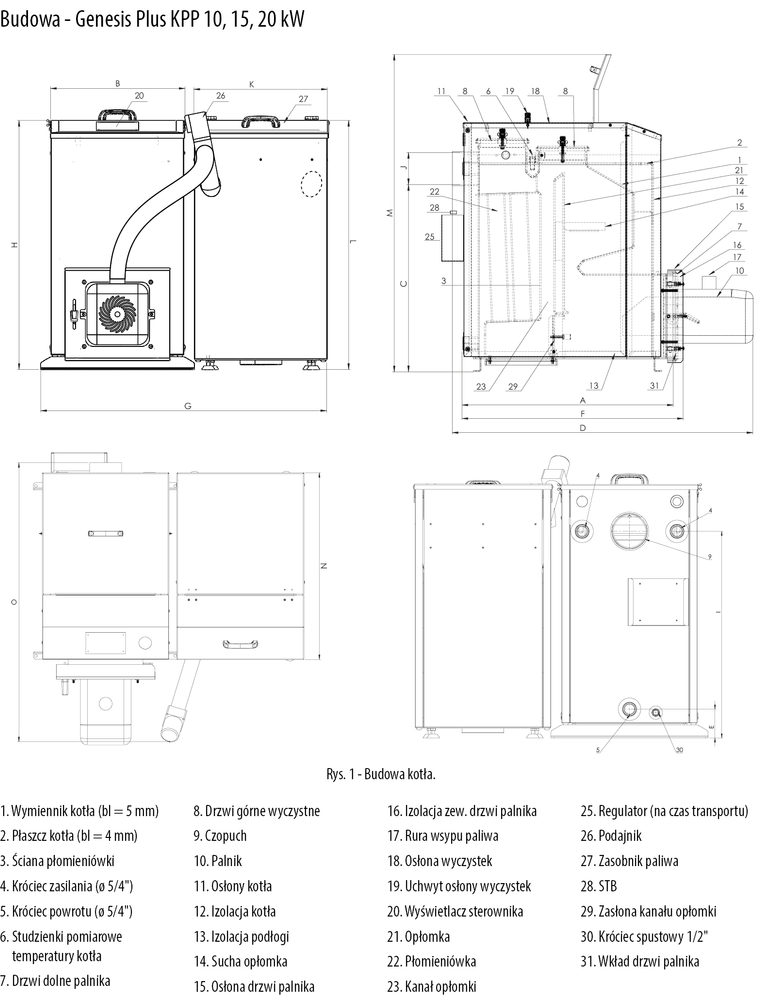
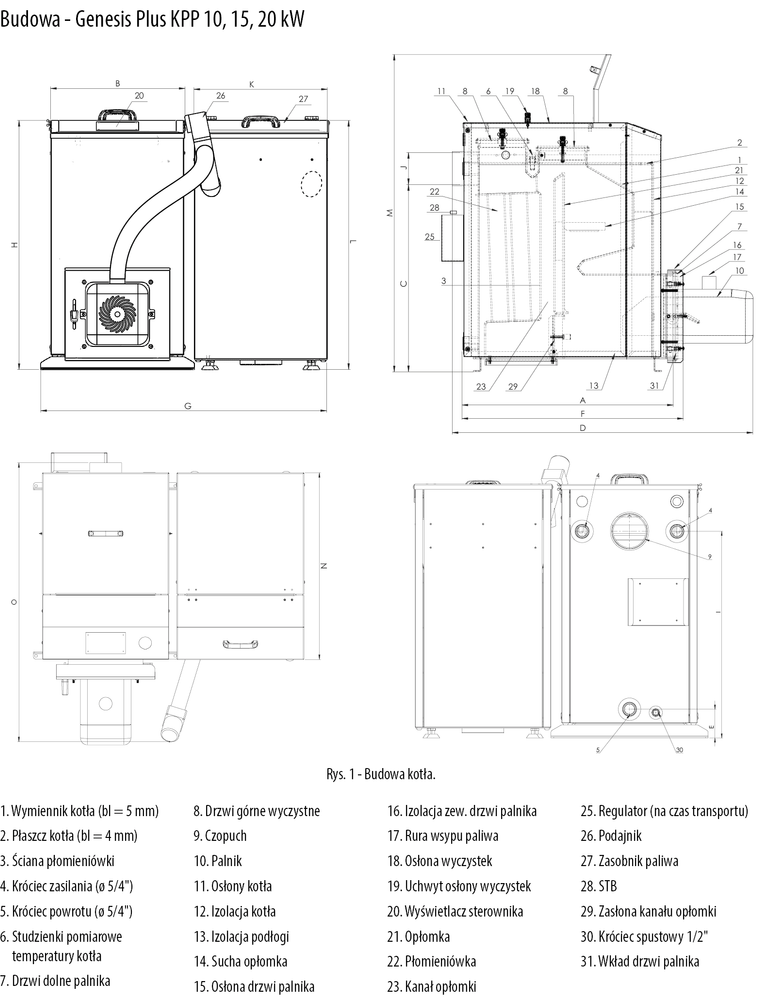
Genesis Plus KPP
Genesis Plus to kocioł na pellet o rekordowej sprawności 97%, klasie energetycznej A+ i 5. klasie czystości. Automatyczna zapalarka, hybrydowy podajnik, duży zasobnik i zaawansowana automatyka gwarantują niskie zużycie paliwa, komfort użytkowania i czystość pracy. Zdalne sterowanie, Fuzzy Logic i najwyższej jakości konstrukcja czynią go liderem wśród ekologicznych kotłów c.o.
Kluczowe cechy
- 90% mniej popiołu, w porównaniu z węglem kamiennym.
- Ekologiczność – biopaliwo, najwyższa 5. kl. czystości spalania,
- Efektywność i oszczędność - sprawność – do 97%
- Czysta kotłownia – biodegradowalny pellet.
- Wygoda - system automatycznego rozpalania, modulacja mocy.
- Komfort obsługi – duży zasobnik paliwa, nowoczesny regulator.
- Pierwsze uruchomienie kotła GRATIS.
- Tylko 97 cm wysokości - 10, 15, 20 kW.
- Dostępne moce: 10, 15, 20, 25, 34 kW.
Szczegóły produktu
Genesis Plus to nowy lider na rynku kotłów na pellet. Ten całkowicie polski ekologiczny kocioł centralnego ogrzewania zaskakuje parametrami technicznymi, ponadprzeciętną wygodą obsługi, ekologicznością i czystością pracy. Jest synonimem oszczędności, solidności i trwałości wykonania. Wyróżniony Złotym Medalem Międzynarodowych Targów Poznańskich Instalacje 2018.*
Najwyższa sprawność
Kocioł Genesis Plus od konkurencji wyraźnie odróżnia niezwykle wysoka sprawność, sięgająca 97% (Genesis Plus 10-34), co potwierdzone zostało pełnym certyfikatem wydanym przez niezależne laboratorium. Wyższa sprawność kotła oznacza dla użytkownika mniejsze zużycie pelletu, a tym samym niższe koszty ogrzewania oraz mniejszą ingerencję w środowisko naturalne.
Klasa energetyczna A+ w 5. kl. czystości
Dział badawczo-rozwojowy Galmet dokładnie dopracował konstrukcje całego typoszeregu jednostek tego modelu o mocach 10, 15, 20, 25, 34, 62 kW, co zagwarantowało, że wszystkie należą do wysokiej klasy energetycznej A+ (od kwietnia 2017 roku wszystkie kotły muszą mieć etykietę energetyczną) i spełniają wymagania czystości spalania najwyższej 5. klasy. Ponadto spełniają one wymagania dofinansowania w programie "Czyste Powietrze".
Efektywność i oszczędności
Cechy konstrukcyjne tego kotła oraz zastosowane technologie zapewniają użytkownikom bardzo duże oszczędności w porównaniu ze standardowymi urządzeniami dotąd dostępnymi na rynku. Hybrydowy podajnik paliwa montowany w kotle Genesis Plus wyposażony jest w zespolony silnik elektryczny, który napędza jednocześnie ślimak palnika oraz wentylator, dzięki czemu udało się zredukować ilość energii elektrycznej pobieranej przez urządzenie.
Palnik wyposażony jest w automatyczną zapalarkę, dzięki której kocioł po dogrzaniu pomieszczenia może samoczynnie się wyłączyć i w razie potrzeby ponownie samoczynnie rozpalić. Ma to niebagatelny wpływ na ograniczenie ilości zużywanego paliwa, szczególnie latem, jeśli kocioł wykorzystywany jest do przygotowywania c.w.u. Po zagrzaniu wody w zbiorniku kocioł się wyłączy. Włączy się ponownie dopiero wtedy, kiedy pojawi się potrzeba dogrzania c.w.u. (zwykły kocioł z podajnikiem pracuje bez przerwy, co prawda w trybie podtrzymania, ale zużywa jednak w tym czasie paliwo). Dzięki zastosowanej automatyce paliwo oraz powietrze do kotła dozowane jest bardzo precyzyjnie, co przekłada się na niskie zużycie paliwa.
Użytkownik ma również możliwość ułożenia własnego programu godzinowego na poszczególne dni tygodnia, według którego będzie pracował kocioł, co jest kolejnym elementem poprawiającym efektywność systemu grzewczego.
Nowocześnie i komfortowo
W Genesis Plus montowane są dwa rodzaje regulatorów – z wyświetlaczem monochromatycznym z pokrętłem, bądź dotykowy z kolorowym panelem LCD. Potrafią one modulować moc generowaną przez kocioł w zależności od odbioru ciepła (algorytm Fuzzy Logic), dzięki czemu jest ona precyzyjnie dopasowywana do aktualnego odbioru ciepła przez instalację.
Nowatorskie rozwiązanie podajnika paliwa, który zasila kocioł w miarę zapotrzebowania, zapewnia utrzymywanie stabilnej temperatury w budynku, co zdecydowanie poprawia komfort cieplny (w zwykłych kotłach brak uzupełnienia paliwa na czas powoduje wahania temperatury wewnętrznej budynku).
Zasobnik paliwa jest duży – ma pojemność 180 lub 350 l (w zależności od mocy kotła) i dzięki temu nie ma potrzeby doglądania urządzenia co kilka, czy kilkanaście godzin, tak jak w przypadku zwykłego kotła. Wystarczy co kilka dni uzupełnić paliwo w zasobniku.
Czystość pracy
Problem, który był zmorą użytkowników kotłów starego typu, czyli rozpalanie, w Genesis Plus zupełnie przestał istnieć. Za sprawą nowoczesnej zapalarki proces ten przebiega automatycznie, bez ingerencji użytkownika. Do minimum zredukowany został także kłopot z odpadami po procesie spalania – w przypadku pelletu ilość popiołu jest znikoma (z 1 tony paliwa powstaje zaledwie kilka kilogramów popiołu. Komfort użytkowania nowoczesnego kotła pelletowego jest nieporównywalnie większy, niż w przypadku urządzeń starego typu, także z tego powodu, że kotłownia wyposażona w Genesis Plus pozostaje czysta przez cały okres funkcjonowania. Z pewnością nie pojawią się w niej brudne ściany i pył typowy dla pomieszczeń z kotłami węglowymi.
Funkcjonalność i elastyczność zastosowań
Genesis Plus stwarza możliwość podłączenia go do rozbudowanych instalacji - regulator kotła pozwala bezpośrednio wysterować trzy pompy obiegowe i jeden siłownik zaworu mieszającego. Dzięki dodatkowym modułom można rozszerzyć funkcjonalność sterowania o obsługę bufora, dodatkowych siłowników zaworów mieszających, kolejnych pomp obiegowych, sondę lambda, czy dodatkowego podajnika na paliwo.
Dostępny moduł internetowy zapewnia użytkownikom możliwość zdalnego uruchamiania, wygaszania oraz edycji wszystkich parametrów kotła. Umożliwia także dostęp do historii pracy kotła w formie czytelnych wykresów dla poszczególnych parametrów oraz tworzenie tabel z wykazem ewentualnych zakłóceń w pracy urządzenia.
Zastosowanie dotykowego kolorowego panelu pokojowego pozwala natomiast nie tylko precyzyjnie regulować temperaturę w pomieszczeniach, ale również uzyskać dodatkowe informacje z regulatora kotła, np. dane o ilości paliwa w zbiorniku, aktualnej temperaturze kotła, czy zbiornika z c.w.u.
Stosowane w kotłach Genesis Plus palniki hybrydowe z funkcją automatycznego czyszczenia wyposażone są w innowacyjne ruchome palenisko. Rozwiązanie to znacznie usprawnia proces spalania pelletu. W połączeniu z automatyczną zapalarką i dużym zasobnikiem umożliwia bezobsługową pracę kotła przez długi czas.
Bezpieczeństwo
Zastosowane w Genesis Plus dwa oddzielne podajniki paliwa - jeden w zasobniku, a drugi w palniku – radykalnie ograniczają możliwość przedostania się ognia z palnika do zasobnika. Ponadto rura łącząca zasobnik z palnikiem została wykonana z odpornego i niepalnego materiału.
Trwałość
Wszystkie kotły Genesis Plus w typoszeregu 10, 15, 20, 25, 34, 62 kW wykonywane są z atestowanej blachy kotłowej P265GH, która jest o wiele bardziej odporna na ciśnienie, temperaturę i korozję od zwykłej stali.
Dla użytkownika Genesis Plus - korzyści, korzyści i jeszcze raz korzyści!
Pelletowy Genesis Plus jest kolejnym, po ubiegłorocznym mocnym debiucie zasilanego ekogroszkiem kotła c.o. Galaxia (również laureata konkursu TOPTEN), przebojem rynkowym firmy Galmet. Oba wymienione modele są najnowocześniejszymi, wysokosprawnymi i ekologicznymi urządzeniami, które gwarantują swoim użytkownikom wiele korzyści – przede wszystkim ponadprzeciętny komfort i czystość obsługi, duże oszczędności eksploatacyjne i rewelacyjną efektywność energetyczną. Kotły spełniają wymogi 5. klasy czystości zgodnie z normą 303:5-2012 i podlegają programom dofinansowania. Obrazu liderów rynku najnowocześniejszych kotłów c.o. dopełniają najwyższe parametry techniczne oraz solidność i trwałość wykonania z najlepszych materiałów. Oba kotły stanowią również podstawę ekologicznych Hybrydowych Systemów Grzewczych. Ich połączenie z powietrzną pompą ciepła do c.w.u. lub kolektorem słonecznym to najczęściej wybierane rozwiązanie hybrydowe. Najmądrzejsze kotły c.o. w Polsce dostępne są we wszystkich dobrych hurtowniach i sklepach instalacyjnych oraz u autoryzowanych instalatorów urządzeń marki Galmet.
Każdy użytkownik kotłów Genesis Plus w cenie kotła otrzymuje usługę „pierwszego uruchomienia kotła” wykonywaną przez autoryzowany serwis, która jest warunkiem koniecznym gwarancji.
* Złotym Medalem wyróżniono typoszereg kotłów 10, 15, 20 kW.











