
Zbiornik buforowy bez wężownicy
Zbiornik buforowy SG(B) magazynuje ciepło z wielu źródeł – kotła, pompy ciepła czy kominka – stabilizując pracę instalacji c.o. i ograniczając częste załączanie urządzeń. Konstrukcja z czarnej stali węglowej (do 0,3 MPa, opcjonalnie 0,6 MPa) oraz przyłącza rozmieszczone na całej wysokości zapewniają efektywne wykorzystanie energii. Wszystkie króćce i opcjonalne wężownice montowane są po jednej stronie, co ułatwia instalację i pozwala ustawić zbiornik blisko ściany. Bufor może pracować z wodą zdemineralizowaną lub glikolem, a izolacja – twarda PU, Neodul® lub miękka PU, zależnie od pojemności – zmniejsza straty ciepła. Modele wykonywane są na indywidualne zamówienie z możliwością doboru pojemności i króćców, a szeroka gama akcesoriów (wężownice, komplety GE, osłony czujników) rozszerza funkcjonalność. Produkt objęty jest 60-miesięczną gwarancją.
Kluczowe cechy
- Zwiększa wydajność instalacji, pozwala obniżyć koszty ogrzewania.
- Ogranicza częstotliwość załączania kotła.
- Zabezpiecza instalację przed przegrzaniem.
- Może być zasilany z kilku źródeł ciepła.
- Pozwala na stosowanie zdemineralizowanej wody kotłowej i glikolu.
- Pracuje z max. ciśnieniem do 0,6MPa*.
- Typ: 200 - 5000 litrów.
Szczegóły produktu
Zbiornik buforowy akumuluje ciepło wytworzone przez różne urządzenia grzewcze. Gorąca woda zgromadzona w zbiorniku wykorzystywana jest później do zasilania układu c.o. Zbiornik buforowy bez wężownicy pozwala ograniczyć częstotliwość załączania kotła c.o., lub pompy ciepła i utrzymać stabilną temperaturę w instalacji. Pełni jednocześnie funkcję tzw. sprzęgła w instalacji i zabezpiecza układ przed przegrzaniem. Stanowi niezbędny element każdego układu centralnego ogrzewania. Przeznaczony jest do zwiększania wydajności i trwałości układów c.o. Umożliwia jednoczesne zasilanie budynku urządzeniami, które pracują w otwartym i zamkniętym układzie zasilania. Może być zasilany z kilku źródeł ciepła jednocześnie, w tym kotła c.o., kominka lub pompy ciepła.
Sprawdzona konstrukcja
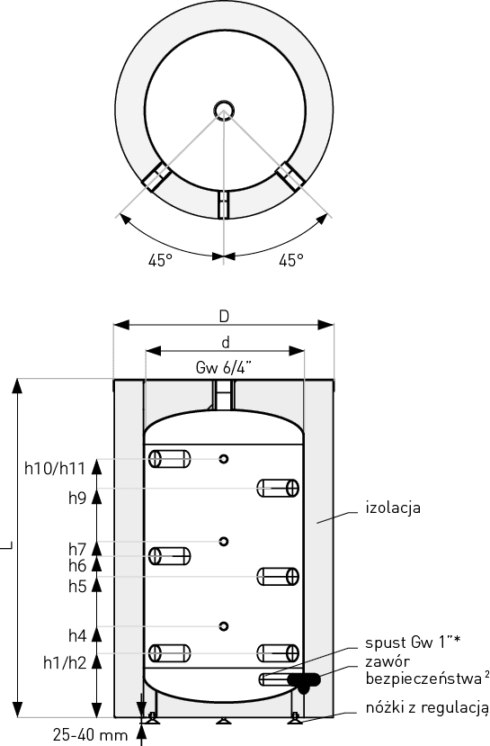
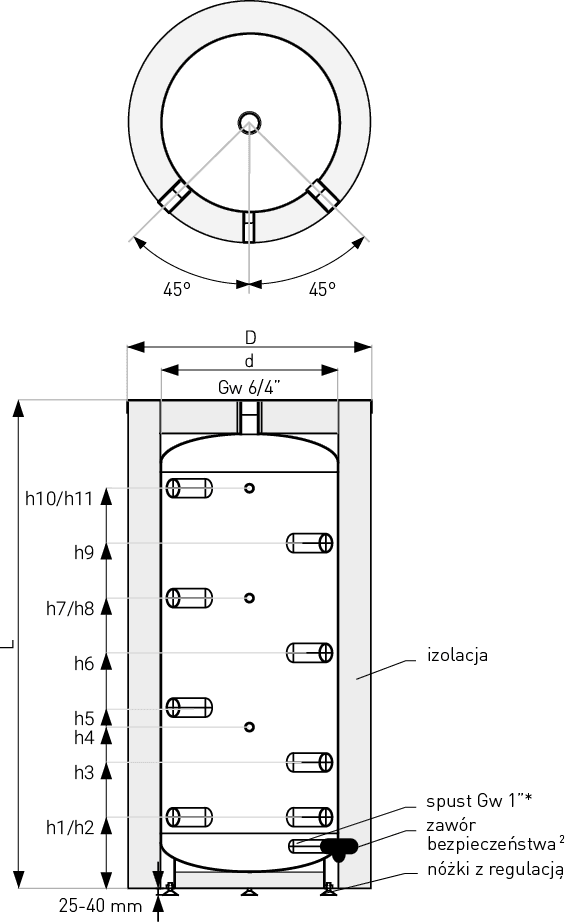
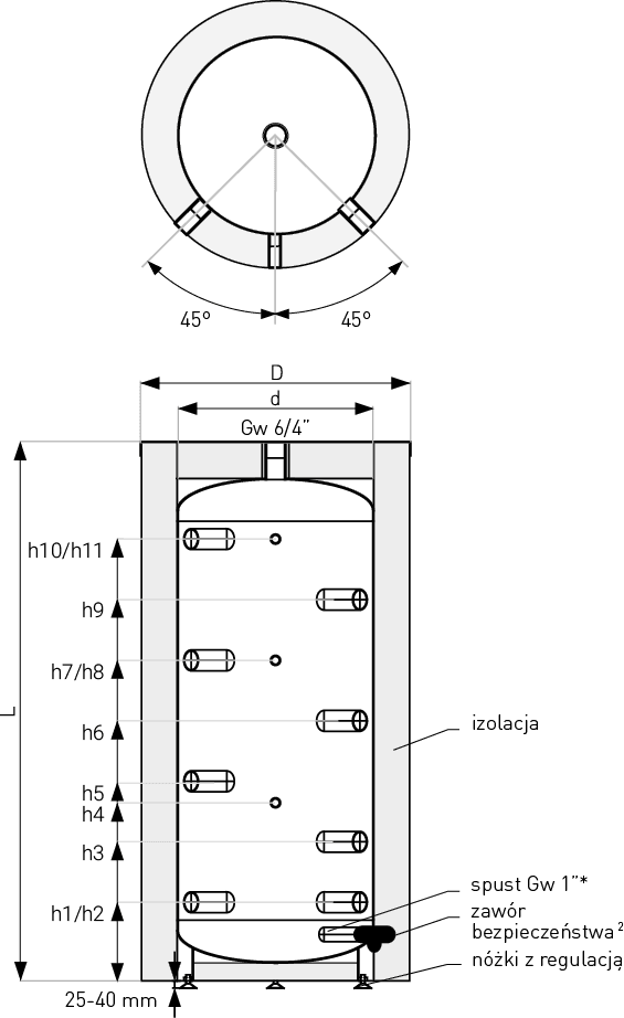
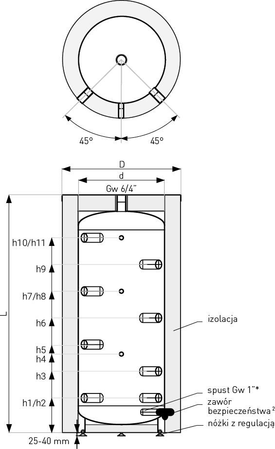
Konstrukcja zbiornika buforowego SG(B) zapewnia maksymalne wykorzystanie ciepła. Rozmieszczone na całej wysokości przyłącza hydrauliczne pozwalają zasilić instalację grzewczą różnymi temperaturami czynnika grzewczego. Zbiornik buforowy wykonany został z wytrzymałej, czarnej stali węglowej. Umożliwia to pracę bufora na ciśnieniu max. do 0.3MPa (0,6MPa, w przypadku wykonań specjalnych).
Komfortowa instalacja
Wszystkie przyłącza skupione są z jednej strony zbiornika. Upraszcza to instalację i konserwację bufora oraz jeszcze bardziej ogranicza ilość zajmowanego miejsca w kotłowni. Przy takiej konstrukcji możliwy jest montaż bufora blisko ściany. Z tej samej strony instalowany jest też czujnik temperatury oraz opcjonalne wężownice stalowe lub miedziane, cynowane (dotyczy buforów o pojemności 3000-5000 litrów). Wężownice instalowane w części górnej i dolnej znacząco skracają czas nagrzewania wody.
Zbiornik wody kotłowej (bufor) przeznaczony jest do magazynowani zdemineralizowanej wody kotłowej lub roztworu glikolu. Ich stosowanie zapewnia pracę układu z najwyższą sprawnością i wydłuża trwałość urządzenia.
Komfort instalacji i niskie koszty eksploatacji poprawia również zastosowanie w konstrukcji zbiornika buforowego SG(B) izolacji z:
- Twardej pianki poliuretanowej (typ 200-500)
- Rozbieralnej izolacji Neodul® (typ 800-2000)
- Miękkiej rozbieralnej pianki poliuretanowej (typ 3000-5000)
„Czarne bufory” SG(B) oferowane są w obudowie z tworzywa typu folia PVC, w kolorze szarym (zbiorniki izolowane) lub bez ocieplenia (malowane farbą podkładową).
Zbiorniki skrojone na miarę
Pojemność, ilość, umiejscowienie i średnica króćców przyłączeniowych to parametry, które mogą być dobierane indywidualnie do każdej inwestycji. Zbiorniki te wykonywane są na indywidualne zamówienie inwestora po konsultacji z działem technicznym Galmet.
Trwałość „czarnych buforów” SG(B) i odporność na duże wahania temperatur sprawia, że mogą stanowić również podstawę instalacji do produkcji wody lodowej (izolacja z twardej pianki poliuretanowej).
Kompletne wyposażenie dodatkowe
W ofercie firmy Galmet, znajdują się również:
- Zbiorniki buforowe nieemaliowane z jedną wężownicą stalową do podłączenia dodatkowego źródła ciepła - więcej.
- Zbiorniki buforowe nieemaliowane z dwoma wężownicami stalowymi do podłączenia dodatkowych źródeł ciepła - więcej.
- Wężownice miedziane, cynowane.
- Komplety elektryczne GE z grzałką i sterownikiem.
- Osłony czujnika temperatury.
Gwarantowana jakość
Najlepsze surowce, zaawansowana technologia produkcji i ponad 40 lat doświadczenia gwarantują najwyższą jakość na każdym etapie produkcji zbiorników marki Galmet. Pozwala to zaoferować użytkownikom 60 miesięcy gwarancji**.
* Standardowy zbiornik pracuje z maksymalnym ciśnieniem 0,3 MPa. Zbiornik z maksymalnym ciśnieniem pracy 0,6 MPa dostępny jest na specjalne zamówienienie za dodatkową opłatą.





















