
Zbiornik buforowy z 1 wężownicą spiralną
Zbiornik buforowy z jedną spiralną wężownicą Galmet magazynuje ciepło lub chłód i współpracuje z kotłami, pompami ciepła oraz instalacjami solarnymi, stabilizując pracę systemu i ograniczając częste załączanie źródła ciepła. Wykonany z czarnej stali, z wężownicą w dolnej części (1,4–4,5 m²), zapewnia szybki transfer ciepła między obiegami. Jednostronne rozmieszczenie króćców ułatwia montaż, a przygotowane przyłącza pozwalają stosować komplety GE (2–12 kW). Izolacja PU – stała dla modeli 200–500 l lub rozbieralna dla 800–2000 l – ogranicza straty energii. Bufor współpracuje z większością urządzeń grzewczych i chłodniczych, a pojemności 200–2000 l można dopasować do instalacji lub zamówić w wersji indywidualnej.
Szczegóły produktu
Zbiornik buforowy z jedną wężownicą spiralną Galmet to wszechstronne i efektywne rozwiązanie do magazynowania energii cieplnej i chłodu. Przeznaczony jest do współpracy z wieloma źródłami ciepła – takimi jak kotły pelletowe, gazowe, olejowe czy instalacje solarne – oraz z różnymi odbiornikami, np. ogrzewaniem podłogowym czy grzejnikami. Wbudowana wężownica umożliwia niezależną wymianę ciepła pomiędzy obiegami, co zwiększa elastyczność systemu i poprawia jego wydajność.
Zastosowanie zbiornika buforowego pozwala na stabilizację temperatury w instalacji i ograniczenie częstotliwości załączania źródła ciepła. Przekłada się to na oszczędność energii, większy komfort użytkowania oraz wydłużenie żywotności urządzeń grzewczych. Zbiornik może być również stosowany w instalacjach chłodniczych z wodą lodową, gdzie pełni funkcję zasobnika (magazynu) chłodu, stabilizując pracę układu i poprawiając jego efektywność.
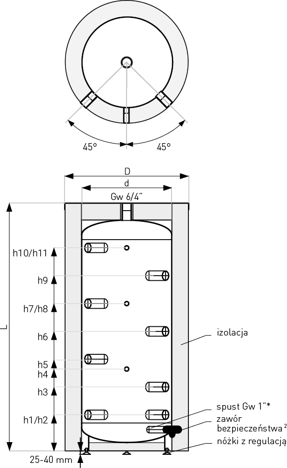
Budowa i funkcje
Zbiornik wykonany jest ze stali czarnej, bez powłoki emalierskiej. Dzięki temu może pracować z wodą kotłową oraz roztworem glikolu.
W dolnej części zbiornika znajduje się wężownica spiralna (wymiennik spiralny), która umożliwia przekazywanie ciepła między niezależnymi obiegami, np. z kolektorów słonecznych do instalacji c.o. W zależności od pojemności zbiornika (od 200 do 2000 litrów), powierzchnia wężownicy wynosi od 1,4 do 4,5 m², a jej objętość – od 9,8 do 31,5 litra. Takie rozwiązanie zapewnia szybkie i równomierne nagrzewanie zbiornika.
Wszystkie króćce przyłączeniowe (6/4") oraz mufy pod czujniki temperatury (1/2") zostały umieszczone po jednej stronie urządzenia. Ułatwia to montaż, pozwala zaoszczędzić miejsce w kotłowni i umożliwia łatwą rozbudowę instalacji w przyszłości.
Każdy zbiornik buforowy jest fabrycznie wyposażony w dodatkowe króćce pod komplet elektryczny GE. Element grzewczy może mieć moc od 2 do 12 kW – w zależności od wielkości zbiornika.
Izolacja i estetyka
Wysokiej jakości izolacja termiczna zapewnia długie utrzymanie ciepła i ogranicza straty energii. Zastosowane rozwiązania to:
- dla modeli 200–500: stała izolacja z pianki poliuretanowej + estetyczna obudowa ze skayu,
- dla modeli 800–2000: izolacja rozbieralna + estetyczna obudowa ze skayu.
Kompatybilność
Zbiornik buforowy z jedną wężownicą spiralną jest kompatybilny z szeroką gamą urządzeń Galmet oraz innych producentów:
- powietrzne i gruntowe pompy ciepła Galmet (np. Airmax³, Airmax2, Maxima, Prima). Zbiorniki odpowiednio dobrane do mocy pompy ciepła.
- kotły pelletowe, gazowe, olejowe, elektryczne, na drewno, węgiel lub ekogroszek,
- instalacje solarne z kolektorami płaskimi lub próżniowymi,
- zasobniki c.w.u., bufory, regulatory pogodowe i systemy Sinum.
- instalacje z wodą lodową w systemach chłodzenia budynków. Tylko zbiorniki ze stałą izolacją poliuretanową czyli typ: 200- 500.
Podsumowanie
Zbiornik buforowy z jedną wężownicą spiralną Galmet to niezawodne i funkcjonalne rozwiązanie dla każdej nowoczesnej instalacji grzewczej. Gwarantuje wyższą sprawność energetyczną, większą niezależność pracy systemu i bezpieczeństwo eksploatacji. Szeroki wybór pojemności – od 200 do 2000 litrów – pozwala idealnie dopasować model do konkretnej inwestycji.
Zbiornik buforowy według Twojego projektu
Na indywidualne zamówienie produkujemy także zbiorniki buforowe o niestandardowej pojemności, liczbie i średnicy przyłączy. Projekt każdorazowo konsultowany jest z działem technicznym Galmet:
Skontaktuj się z naszym doradcą technicznym i sprawdź, który model najlepiej sprawdzi się w Twojej instalacji.















